Bestech Grand Spa – Sector 81, Gurgaon

Bestech Grand Spa – Sector 81, Gurgaon

Bestech Grand Spa Sector 81 Gurgaon is a premium residential development by the renowned Bestech Group. Offering spacious 3 & 4 BHK luxury apartments, this gated community redefines upscale living with world-class amenities, spa-inspired features, and elegant architecture.

Strategically located near NH-8 and Dwarka Expressway, Bestech Grand Spa provides excellent connectivity to major business hubs, schools, and healthcare centers. The project is RERA certified and is designed for those who seek a refined and peaceful lifestyle in the heart of New Gurgaon.

Key Highlights of Bestech Grand Spa

World-Class Amenities at Bestech Grand Spa

Bestech Grand Spa – Location Advantages

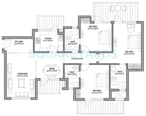
Floor Plans & Layout – Bestech Grand Spa

3 & 4 BHK Units: Ranging from 1,930 to 2,660 sq.ft. (super area)

Each apartment is intelligently planned with spacious interiors, elegant balconies, and maximum natural lighting. Grand layouts with modern fittings ensure luxury at every corner.

  • Premium Modular Kitchen with Utility
  • Lavish Bedrooms with Dressing Area
  • Large Balconies Overlooking Greenery
  • Spacious Living & Dining Lounge
Bestech Grand Spa Floor Plan

Price & Payment Plan – Bestech Grand Spa

Starting Price: ₹1.40 Cr* Onwards (All Inclusive)

Booking Amount: ₹5 Lakhs Only

Payment Plan: Flexible CLP/Subvention Plans Available

Loan Options: Home Loans Available from Leading Banks

Why Invest in Bestech Grand Spa Sector 81 Gurgaon?